Quadrilocale in vendita

Torino, Via Stradella - Via Stradella
€ 145.000
4 locali 4 locali
140 Mq 140 Mq
2 bagni 2 bagni

Quadrilocale in vendita

Torino, Via Stradella - Via Stradella

Descrizione annuncio

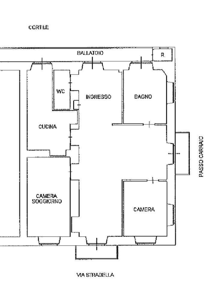
In un tranquillo contesto degli anni ’30, composto da soli due piani, si inserisce questa soluzione abitativa che conserva tutto il fascino dell’epoca pur presentandosi ordinata e curata nelle sue parti comuni. La facciata, recentemente rinfrescata con una delicata tinta giallo chiaro, conferisce all’edificio un aspetto accogliente e luminoso. Il portone d’ingresso in legno introduce immediatamente a un’atmosfera calda e tradizionale, mentre l’appartamento, collocato al piano più basso, risulta comodamente accessibile. Varcata la soglia, ciò che colpisce sono i soffitti a volta con i mattoni a vista, un dettaglio architettonico di grande pregio che dona carattere e richiama l’anima storica dell’immobile. La ristrutturazione ha seguito una linea estetica coerente, privilegiando tonalità calde e materiali che valorizzano l’autenticità degli ambienti. Gli infissi con doppi vetri garantiscono comfort e isolamento, mentre le porte interne in legno, arricchite da un inserto centrale in vetro opaco, permettono alla luce di diffondersi con eleganza da un ambiente all’altro. Il pavimento, chiaro e uniforme in tutti gli spazi principali, crea continuità visiva e luminosità, ad eccezione dei servizi dove sono stati scelti materiali più adatti alla loro funzione. Il riscaldamento autonomo consente una gestione pratica e consapevole dei consumi. Con una metratura generosa di circa 140 mq, l’abitazione si sviluppa in ambienti ampi e ben distribuiti. Il cuore della casa è la zona giorno: un ambiente molto spazioso e accogliente, ideale per vivere quotidianamente la casa o per ospitare momenti conviviali. La cucina, separata e riservata, è dimensionata per accogliere una parete cottura lineare, offrendo praticità senza rinunciare allo stile. La zona notte comprende due camere da letto e l'immobile beneficia della presenza di doppi servizi, una caratteristica che rende l’abitazione particolarmente funzionale. Il bagno padronale, di dimensioni notevoli e dotato di finestra, ospita sanitari e ben due box doccia, offrendo un comfort davvero raro. Il secondo bagno, di servizio, dispone anch’esso dei sanitari essenziali. A completare la proprietà, al piano interrato, si trovano due cantine di pertinenza, utili come spazi di deposito o per organizzare al meglio la casa. La tripla esposizione e la presenza di tre balconi assicurano un’illuminazione naturale uniforme in ogni momento della giornata, valorizzando pienamente ogni ambiente.

Mostra tutto

Nelle vicinanze

Trasporto pubblico Trasporto pubblico
Principi D'Acaja
Principi D'Acaja
2,9 Km
Madonna di Campagna
Madonna di Campagna
270 m
Torino Dora GTT
Torino Dora GTT
1,6 Km
Madonna di Campagna Satti
Madonna di Campagna Satti
350 m
Largo Grosseto Nord
Largo Grosseto Nord
510 m
Ricariche auto elettriche Ricariche auto elettriche
Bluetorino Stradella
300 m
Lidl Altessano
1,6 Km
Edit Torino
1,9 Km
Bluetorino Piazza Derna
2,7 Km
Bluetorino Risorgimento
2,8 Km
Scuole Scuole
Scuole
160 m
La Nidiata
420 m
Asilo Nido "La Nidiata"
500 m
Scuola elementare Don Murialdo
550 m
Palestra della Don Murialdo
570 m
Farmacia Farmacia
Farmacia San Fabio
90 m
Santa Chiara
280 m
Del Mercato
350 m
Corso Grosseto
360 m
Madonna
390 m
Ospedali Ospedali
Amedeo di Savoia
1,6 Km
Ospedale Amedeo di Savoia
1,7 Km
Ospedale Maria Vittoria
2,4 Km
Ospedale San Giovanni Bosco
2,8 Km
Supermercati Supermercati
Carrefour Market
190 m
Supermercati
290 m
Penny market
560 m
Pittarello
980 m
Prestofresco
1,0 Km
Negozi Negozi
Negozi
400 m
Sapori del Palato
790 m
El Pan d'na Volta
1,6 Km
Calliope
1,7 Km
Panetteria Costa Milena
1,7 Km
Bar Bar
Supermarket
90 m
Bar
1,0 Km
Bar Tabacchi
1,2 Km
Vinosteria da Celestino
1,4 Km
Bar
1,5 Km
Ristoranti Ristoranti
Millefiori
0 m
La Paella
70 m
Linopassamilvino
90 m
Bar degli Archi
280 m
Moderno
340 m
Mostra tutto

Caratteristiche

Rif.:
61142832
Piano:
1 di 2 (Piano basso)
Balconi:
3
Camere da letto:
2
Arredamento:
Assente
Condizionamento:
Assente
Mostra tutto
Prezzo Prezzo
€ 145.000
Rata mutuo Rata mutuo
€ 683 / mese
Proponi il tuo prezzoProponi il tuo prezzo

Classe Energetica

E
E
E
E
E
E
E
E
E
EP globale non rinnovabile:
82.22 kW h/m² anno
EP globale rinnovabile:
0.22 kW h/m² anno
EP invernale del fabbricato:
EP estiva del fabbricato:
Anno di costruzione:
1930
Riscaldamento:
Autonomo
Tipo impianto:
A radiatori
Tipo alimentazione:
Metano

Ti interessa visionare l'immobile?

Fissa un appuntamento  Fissa un appuntamento

Richiedi informazioni

Clicca su Leggi per aprire l'informativa
* Questi campi sono obbligatori

Calcola il tuo mutuo

Semplice e senza impegno
Anticipo

( % )
Mutuo

( % )

pochi semplici passi

inserisci i tuoi dati
Questionario completato
Grazie per aver richiesto un appuntamento senza impegno con un nostro Consulente del Credito e Assicurativo.

Hai inserito correttamente tutti i dati necessari e a breve riceverai una e-mail con un link da convalidare per inviare i tuoi dati.
Affiliato
Immobiliare Coppino Sas
Via Coppino, 141/A 10147 Torino (TO)
Via Coppino, 141/A 10147 Torino (TO)
Zona: Borgo Vittoria-Via Cardinal Massaia-Piazza Bonghi
Mostra su mappa
Orari: da Lunedì al Venerdì 9.00-12.30 14.30 - 20.30 Sabato 9.00-12.30 14.30- 19.00 Domenica su appuntamento
Affiliato
Immobiliare Coppino Sas
Via Coppino, 141/A 10147 Torino (TO)

2026 Tecnocasa Franchising S.p.A. - P. IVA 08365160152 - Via Monte Bianco 60/A 20089 Rozzano (MI). Ogni agenzia ha un proprio titolare ed è autonoma. Privacy policy | Policy utilizzo | Cookie policy