Quadrilocale in vendita

Torino, Piazza Bonghi - Piazza Bonghi
€ 169.000
4 locali 4 locali
85 Mq 85 Mq
2 bagni 2 bagni

Quadrilocale in vendita

Torino, Piazza Bonghi - Piazza Bonghi

Descrizione annuncio

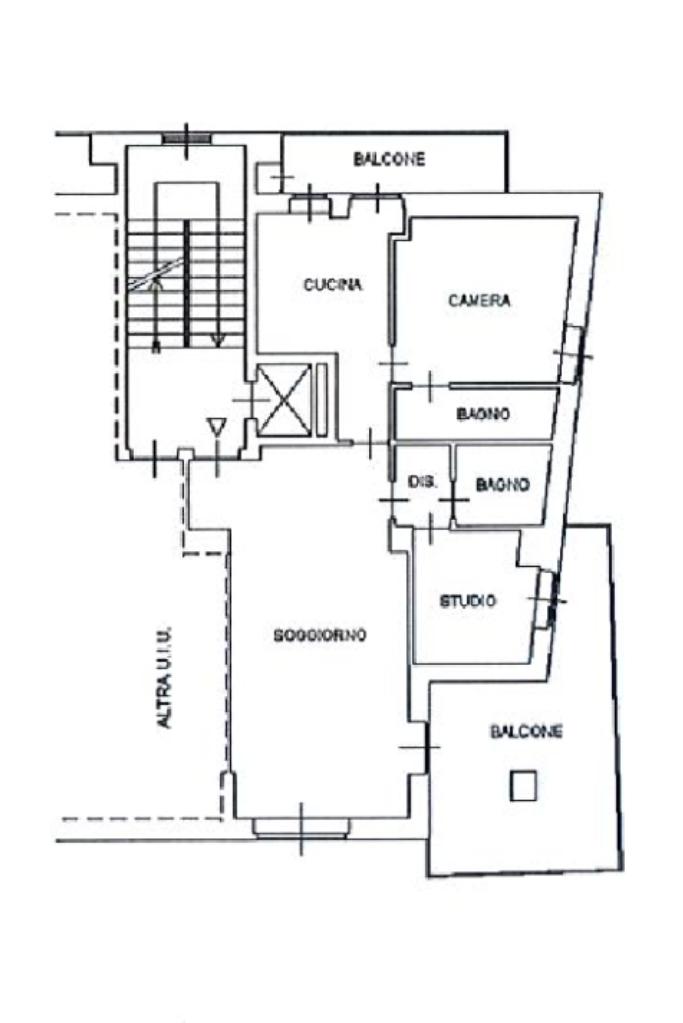
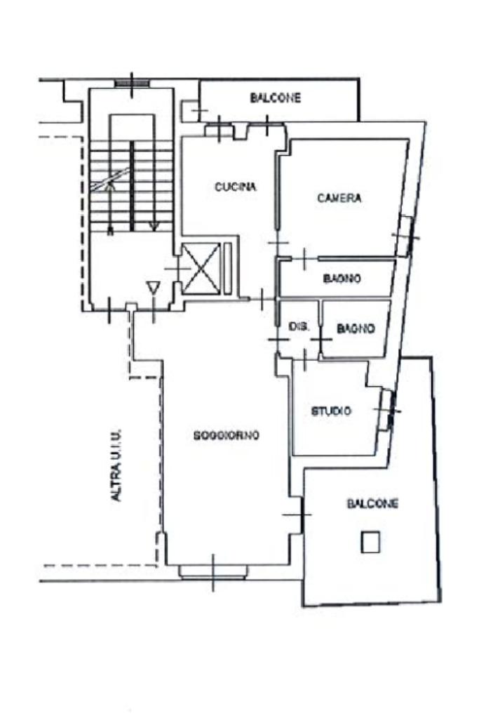
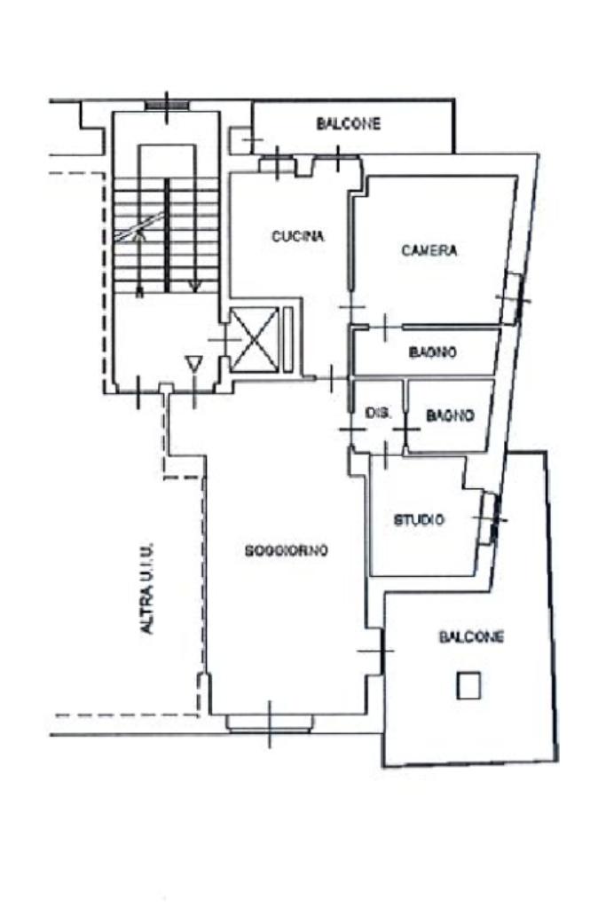
L’immobile si inserisce in un elegante contesto residenziale degli anni ’70, affacciato su Piazza Bonghi, una delle zone più ricercate e apprezzate del quartiere. Il palazzo, di nove piani, si distingue per il rivestimento in mattoncini a vista, elemento che ne valorizza il carattere architettonico e la solidità. L’androne condominiale è imponente ed elegante, impreziosito da finiture in marmo e da un raffinato tappeto rosso che accompagna i primi gradini verso il vano scale, creando un immediato senso di accoglienza. A servizio dell’edificio è presente anche il montascale, che garantisce un accesso agevole alle persone con disabilità. L’ascensore conduce comodamente al piano e il citofono con videocamera assicura un ulteriore livello di comfort e sicurezza. L’abitazione è stata oggetto di una ristrutturazione elegante e funzionale, studiata per valorizzare ogni singolo spazio e rendere gli ambienti armoniosi e ben distribuiti. L’ingresso si apre su un ampio living, vero cuore della casa: uno spazio accogliente e confortevole, ideale per la vita quotidiana e per momenti di convivialità. Da qui si accede a un terrazzo di circa 16 mq, facilmente arredabile e perfetto per pranzi e cene all’aperto. La vista aperta sulla piazza garantisce luminosità e al tempo stesso un’ottima riservatezza. La cucina abitabile, separata dal soggiorno, offre dimensioni adeguate che consentono l’inserimento di una cucina completa e di un tavolo con sedute. Dalla cucina si accede alla pertinenza esterna sul lato interno, un balcone munito di tende veranda. La zona notte è composta da due camere, versatili e facilmente adattabili alle proprie esigenze: una di esse si presta perfettamente a essere utilizzata come studio. L’immobile è servito da doppi servizi: uno completo di tutti i sanitari e vasca da bagno, l’altro dotato di wc e box doccia. Le finiture interne sono ricercate e moderne. Durante la ristrutturazione sono stati realizzati ribassamenti con numerosi punti luce, capaci di creare suggestivi giochi di luce che rendono gli ambienti caldi e accoglienti. Sono presenti inserti in pietra e tutte le porte sono state sostituite con porte a scrigno, soluzione ideale per ottimizzare gli spazi; i profili in vetro satinato permettono il passaggio della luce naturale, aumentando la luminosità complessiva della casa. Tutti gli infissi sono dotati di doppi vetri e il riscaldamento è centralizzato con termovalvole, caratteristiche che assicurano comfort e una gestione efficiente del calore. Nelle camere è inoltre presente l’aria condizionata. Completa la proprietà una cantina di pertinenza. La posizione dell’edificio è particolarmente favorevole per la vicinanza ai servizi: scuole di vario grado, piccoli supermercati e numerose attività commerciali sono facilmente raggiungibili a piedi. I giardini di Piazza Bonghi, attrezzati con area giochi e panchine, rappresentano un piacevole punto di ritrovo per le famiglie, mentre le diverse caffetterie che circondano la piazza contribuiscono a rendere la zona vivace e piacevole in ogni momento della giornata.

Mostra tutto

Nelle vicinanze

Trasporto pubblico Trasporto pubblico
Principi D'Acaja
Principi D'Acaja
2,8 Km
Bernini
Bernini
3,0 Km
Madonna di Campagna
Madonna di Campagna
620 m
Torino Dora GTT
Torino Dora GTT
1,3 Km
Madonna di Campagna Satti
Madonna di Campagna Satti
700 m
Ricariche auto elettriche Ricariche auto elettriche
Bluetorino Stradella
160 m
Edit Torino
1,6 Km
Lidl Altessano
1,9 Km
Bluetorino Piazza Derna
2,4 Km
evway TO Statuto
2,8 Km
Scuole Scuole
Asilo Nido "La Nidiata"
150 m
La Nidiata
190 m
Scuola elementare Don Murialdo
210 m
Scuola media Antonio Vivaldi
230 m
Palestra della Don Murialdo
230 m
Farmacia Farmacia
Farmacia Garelli
270 m
Farmacia San Fabio
270 m
Corso Grosseto
430 m
Calvo
470 m
Del Mercato
560 m
Ospedali Ospedali
Amedeo di Savoia
1,6 Km
Ospedale Amedeo di Savoia
1,6 Km
Ospedale Maria Vittoria
2,4 Km
Ospedale San Giovanni Bosco
2,5 Km
Ospedale Oftalmico
3,0 Km
Supermercati Supermercati
Carrefour Market
190 m
Penny market
450 m
Supermercati
590 m
Pittarello
750 m
Bennet
800 m
Negozi Negozi
Negozi
180 m
Sapori del Palato
710 m
Calliope
1,5 Km
Piazza Italia
1,5 Km
Biobottega
1,5 Km
Bar Bar
Supermarket
260 m
Bar
690 m
Bar Tabacchi
1,2 Km
Bar
1,2 Km
Spazio 211
1,4 Km
Ristoranti Ristoranti
Bar degli Archi
70 m
Moderno
120 m
Grande Bambù
180 m
Sa Crocoriga
290 m
La Paella
300 m
Mostra tutto

Caratteristiche

Rif.:
61160117
Piano:
3 di 9 con ascensore (Piano medio)
Balconi:
1
Terrazzi:
1
Camere da letto:
2
Arredamento:
Assente
Mostra tutto
Prezzo Prezzo
€ 169.000
Rata mutuo Rata mutuo
€ 796 / mese
Proponi il tuo prezzoProponi il tuo prezzo

Classe Energetica

E
E
E
E
E
E
E
E
E
EP globale non rinnovabile:
135.58 kW h/m² anno
EP globale rinnovabile:
17.28 kW h/m² anno
EP invernale del fabbricato:
EP estiva del fabbricato:
Anno di costruzione:
1970
Riscaldamento:
Centralizzato
Tipo impianto:
A radiatori
Tipo alimentazione:
Metano

Ti interessa visionare l'immobile?

Fissa un appuntamento  Fissa un appuntamento

Richiedi informazioni

Clicca su Leggi per aprire l'informativa
* Questi campi sono obbligatori

Calcola il tuo mutuo

Semplice e senza impegno
Anticipo

( % )
Mutuo

( % )

pochi semplici passi

inserisci i tuoi dati
Questionario completato
Grazie per aver richiesto un appuntamento senza impegno con un nostro Consulente del Credito e Assicurativo.

Hai inserito correttamente tutti i dati necessari e a breve riceverai una e-mail con un link da convalidare per inviare i tuoi dati.
Affiliato
Immobiliare Coppino Sas
Via Coppino, 141/A 10147 Torino (TO)
Via Coppino, 141/A 10147 Torino (TO)
Zona: Borgo Vittoria-Via Cardinal Massaia-Piazza Bonghi
Mostra su mappa
Orari: da Lunedì al Venerdì 9.00-12.30 14.30 - 20.30 Sabato 9.00-12.30 14.30- 19.00 Domenica su appuntamento
Affiliato
Immobiliare Coppino Sas
Via Coppino, 141/A 10147 Torino (TO)

2026 Tecnocasa Franchising S.p.A. - P. IVA 08365160152 - Via Monte Bianco 60/A 20089 Rozzano (MI). Ogni agenzia ha un proprio titolare ed è autonoma. Privacy policy | Policy utilizzo | Cookie policy