Trilocale in vendita

Torino, Corso Grosseto - Corso Grosseto
€ 127.000
3 locali 3 locali
85 Mq 85 Mq
1 bagno 1 bagno

Trilocale in vendita

Torino, Corso Grosseto - Corso Grosseto

Descrizione annuncio

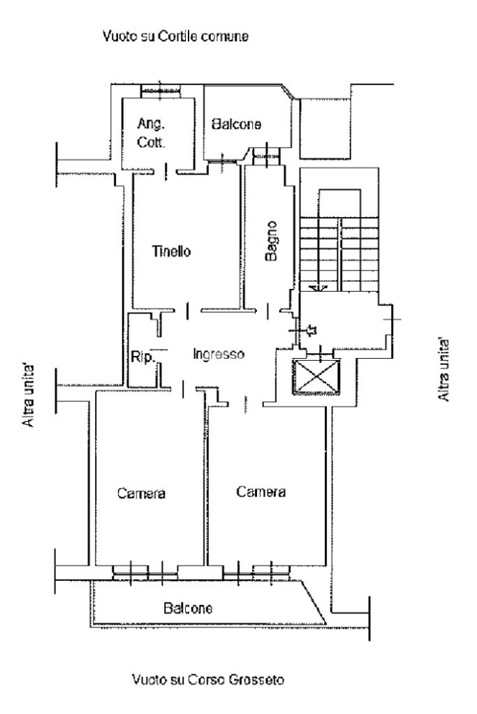
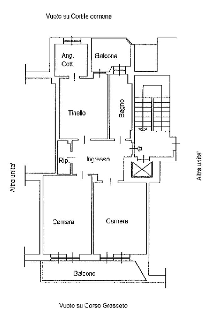
L’immobile è inserito in un edificio di sette piani edificato nella seconda metà degli anni ’60, situato in corso Grosseto, in una posizione particolarmente comoda e ben servita. Il contesto urbano risulta favorevole alla quotidianità: nelle immediate vicinanze si trova la stazione ferroviaria della linea Torino–Ceres, mentre l’ingresso della tangenziale nord è raggiungibile in pochi minuti d’auto. La presenza capillare dei mezzi pubblici garantisce spostamenti agevoli verso ogni zona della città. Il complesso condominiale si presenta ordinato e ben curato, con una facciata in paramano che conferisce solidità ed eleganza all’edificio. L’androne accoglie con un’atmosfera raffinata grazie al rivestimento in marmo, valorizzato dalla presenza di un tappeto posizionato sui primi gradini. A servizio del condominio è presente un montascale, pensato per agevolare l’accesso a persone con ridotta mobilità. L’ascensore serve comodamente tutti i piani e il complesso è dotato di videocitofono condominiale. L’abitazione mantiene il taglio regolare tipico dell’epoca di costruzione, con spazi ben distribuiti e razionalmente sfruttati, oggetto di ristrutturazione nel tempo. Durante gli interventi sono stati installati una porta blindata, infissi con doppi vetri e una caldaia esterna di recente installazione, a garanzia di comfort e sicurezza. L’ingresso disimpegna in modo funzionale tutti gli ambienti della casa. La zona giorno è composta da un tinello ampio e luminoso, affiancato da un cucinino separato; quest’ultimo, grazie alle sue dimensioni generose, consente di arredare entrambe le pareti senza rinunciare alla comodità di movimento. Il tinello è dotato di impianto di aria condizionata e di serrande motorizzate, elementi che contribuiscono al benessere abitativo. La zona notte ospita due camere da letto, entrambe con accesso al balcone comunicante. Gli ambienti sono dotati di zanzariere e godono di un piacevole affaccio esterno. Le pertinenze esterne risultano comode e ben vivibili: su entrambi i balconi è possibile collocare un tavolino con le relative sedie, creando spazi ideali per momenti di relax. Il bagno, finestrato, è completo di sanitari e box doccia. Completano la proprietà un pratico ripostiglio e la cantina. L’immobile è libero da subito e pronto per essere vissuto, rappresentando una soluzione abitativa funzionale, ben collegata e immediatamente disponibile.

Mostra tutto

Nelle vicinanze

Trasporto pubblico Trasporto pubblico
Madonna di Campagna
Madonna di Campagna
530 m
stazione di Torino Rebaudengo Fossata
stazione di Torino Rebaudengo Fossata
1,4 Km
Largo Grosseto Nord
Largo Grosseto Nord
620 m
Madonna di Campagna Satti
Madonna di Campagna Satti
620 m
Saorgio
Saorgio
70 m
Ricariche auto elettriche Ricariche auto elettriche
Bluetorino Stradella
510 m
Edit Torino
1,9 Km
Lidl Altessano
1,9 Km
Bluetorino Piazza Derna
2,4 Km
Scuole Scuole
Scuole
270 m
La Nidiata
290 m
Palestra della Don Murialdo
490 m
Scuola elementare Don Murialdo
490 m
Asilo Nido "La Nidiata"
490 m
Farmacia Farmacia
Corso Grosseto
40 m
Del Mercato
230 m
Farmacia San Fabio
400 m
San Rocco dottor Arese Gianpiero
430 m
Madonna
520 m
Ospedali Ospedali
Amedeo di Savoia
1,9 Km
Ospedale Amedeo di Savoia
2,0 Km
Ospedale San Giovanni Bosco
2,6 Km
Ospedale Maria Vittoria
2,7 Km
Supermercati Supermercati
Penny market
210 m
Carrefour Market
420 m
Supermercati
660 m
Pittarello
1,2 Km
Bennet
1,2 Km
Negozi Negozi
Negozi
580 m
Sapori del Palato
1,1 Km
El Pan d'na Volta
1,9 Km
Calliope
1,9 Km
Focacceria La Trinacria
1,9 Km
Bar Bar
Supermarket
380 m
Bar
1,1 Km
Bar Tabacchi
1,5 Km
Spazio 211
1,6 Km
Bar
1,6 Km
Ristoranti Ristoranti
Bar degli Archi
380 m
Millefiori
390 m
Grande Bambù
390 m
La Paella
420 m
Linopassamilvino
470 m
Mostra tutto

Caratteristiche

Rif.:
61163270
Piano:
1 di 7 con ascensore (Piano basso)
Balconi:
2
Camere da letto:
2
Arredamento:
Assente
Condizionamento:
Autonomo
Mostra tutto
Prezzo Prezzo
€ 127.000
Rata mutuo Rata mutuo
€ 590 / mese
Spese annue Spese annue
€ 800
Proponi il tuo prezzoProponi il tuo prezzo

Classe Energetica

E
E
E
E
E
E
E
E
E
EP globale non rinnovabile:
132.06 kW h/m² anno
EP globale rinnovabile:
2.35 kW h/m² anno
EP invernale del fabbricato:
EP estiva del fabbricato:
Anno di costruzione:
1965
Riscaldamento:
Centralizzato
Tipo impianto:
A radiatori
Tipo alimentazione:
Metano

Ti interessa visionare l'immobile?

Fissa un appuntamento  Fissa un appuntamento

Richiedi informazioni

Clicca su Leggi per aprire l'informativa
* Questi campi sono obbligatori

Calcola il tuo mutuo

Semplice e senza impegno
Anticipo

( % )
Mutuo

( % )

pochi semplici passi

inserisci i tuoi dati
Questionario completato
Grazie per aver richiesto un appuntamento senza impegno con un nostro Consulente del Credito e Assicurativo.

Hai inserito correttamente tutti i dati necessari e a breve riceverai una e-mail con un link da convalidare per inviare i tuoi dati.
Affiliato
Immobiliare Coppino Sas
Via Coppino, 141/A 10147 Torino (TO)
Via Coppino, 141/A 10147 Torino (TO)
Zona: Borgo Vittoria-Via Cardinal Massaia-Piazza Bonghi
Mostra su mappa
Orari: da Lunedì al Venerdì 9.00-12.30 14.30 - 20.30 Sabato 9.00-12.30 14.30- 19.00 Domenica su appuntamento
Affiliato
Immobiliare Coppino Sas
Via Coppino, 141/A 10147 Torino (TO)

2026 Tecnocasa Franchising S.p.A. - P. IVA 08365160152 - Via Monte Bianco 60/A 20089 Rozzano (MI). Ogni agenzia ha un proprio titolare ed è autonoma. Privacy policy | Policy utilizzo | Cookie policy