Quadrilocale in vendita

Torino, Via Casteldelfino - Piazza Bonghi
€ 199.000
109 Mq 109 Mq
1 bagno 1 bagno

Quadrilocale in vendita

Torino, Via Casteldelfino - Piazza Bonghi

Descrizione annuncio

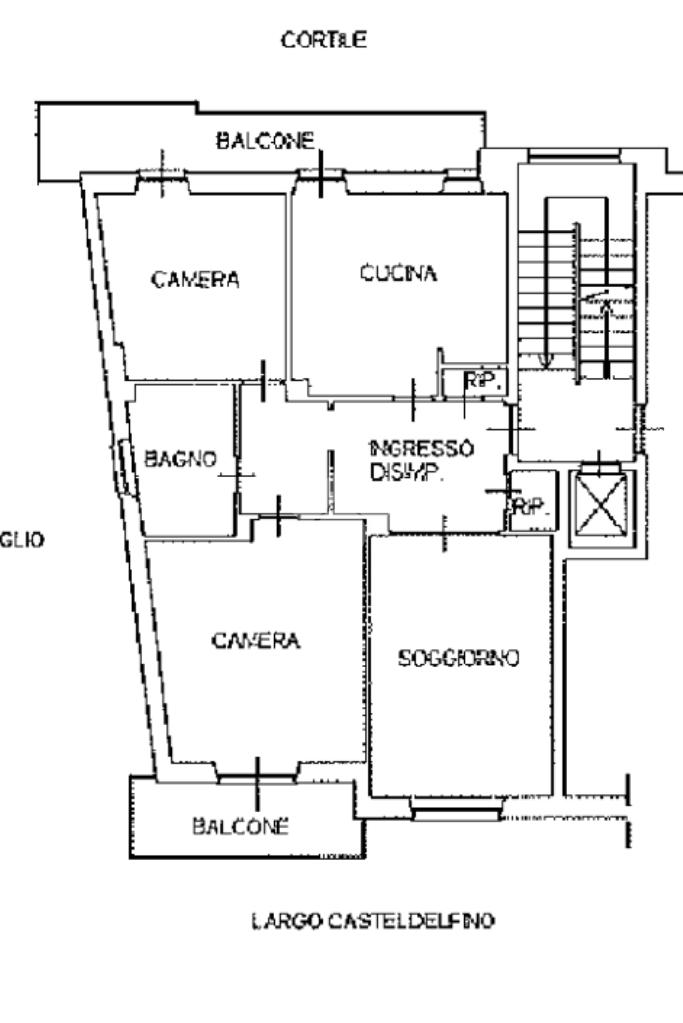
In via Casteldelfino, nelle immediate vicinanze di via Breglio – snodo centrale e strategico per la viabilità del quartiere Borgo Vittoria – sorge un elegante stabile di nove piani edificato negli anni ’70, inserito in un contesto comodo e ben servito. La posizione rappresenta uno dei punti di forza dell’immobile: nelle vicinanze si trovano numerose scuole, servizi di prima necessità e due piacevoli aree verdi attrezzate con panchine e giochi per bambini, situate in Piazza Bonghi e in via Sospello, ideali per momenti di svago all’aria aperta. I mezzi pubblici presenti in zona consentono inoltre rapidi collegamenti con il centro città. Il complesso, di tipo signorile, è dotato di ascensore, montascale e videocitofono. La facciata in paramano garantisce solidità e una manutenzione agevole nel tempo. L’androne, curato e accogliente, è impreziosito da piante ornamentali e da un elegante tappeto rosso, che conferisce un’immediata sensazione di ordine e raffinatezza. L’appartamento si distingue per la generosa metratura interna e per la tripla esposizione, elementi che assicurano ambienti ariosi e luminosi durante tutto l’arco della giornata. Il cuore della casa è rappresentato dal soggiorno, uno spazio ampio e accogliente, perfetto per riunire la famiglia nei momenti di relax. La cucina abitabile, separata e funzionale, è in grado di ospitare una parete cottura lineare, un tavolo con sedie e un’eventuale credenza, senza sacrificare la vivibilità degli spazi; da qui si accede direttamente al balcone. La zona notte è composta da due camere da letto, entrambe rifinite con parquet originale dell’epoca, ben conservato e in ottimo stato, che dona calore agli ambienti. Il bagno, finestrato e recentemente ristrutturato, è completo di sanitari e box doccia. A completare la funzionalità dell’immobile sono presenti due pratici ripostigli, ideali per l’organizzazione degli spazi, e una cantina al piano interrato. L’appartamento si presenta abitabile fin da subito: è dotato di porta blindata, infissi in alluminio con doppio vetro e impianto di aria condizionata installato in cucina e in una delle camere da letto. Completa la proposta la possibilità di acquistare un box auto a € 16.900, soluzione ideale per garantire comodità e sicurezza in zona.

Mostra tutto

Nelle vicinanze

Trasporto pubblico Trasporto pubblico
Principi D'Acaja
Principi D'Acaja
2,7 Km
XVIII Dicembre
XVIII Dicembre
2,9 Km
Madonna di Campagna
Madonna di Campagna
800 m
Torino Dora GTT
Torino Dora GTT
1,1 Km
Madonna di Campagna Satti
Madonna di Campagna Satti
870 m
Ricariche auto elettriche Ricariche auto elettriche
Bluetorino Stradella
280 m
Edit Torino
1,4 Km
Lidl Altessano
2,1 Km
Bluetorino Piazza Derna
2,3 Km
evway TO Statuto
2,6 Km
Scuole Scuole
Asilo Nido "La Nidiata"
60 m
Scuola media Antonio Vivaldi
70 m
Palestra della A.Vivaldi
110 m
Comprensorio Vivaldi Murialdo
110 m
Scuola elementare Don Murialdo
110 m
Farmacia Farmacia
Farmacia Garelli
140 m
Farmacia San Fabio
450 m
Farmacia Prof. Cavanna S.N.C.
450 m
Farmacia
460 m
Calvo
470 m
Ospedali Ospedali
Amedeo di Savoia
1,5 Km
Ospedale Amedeo di Savoia
1,6 Km
Ospedale Maria Vittoria
2,3 Km
Ospedale San Giovanni Bosco
2,3 Km
Ospedale Oftalmico
2,9 Km
Supermercati Supermercati
Carrefour Market
360 m
Penny market
530 m
Pittarello
630 m
Bennet
700 m
Supermercati
760 m
Negozi Negozi
Negozi
230 m
Sapori del Palato
700 m
Calliope
1,4 Km
Piazza Italia
1,4 Km
Biobottega
1,4 Km
Bar Bar
Supermarket
440 m
Bar
510 m
Bar
1,0 Km
Bar Tabacchi
1,2 Km
Spazio 211
1,3 Km
Ristoranti Ristoranti
Sa Crocoriga
130 m
Grande Bambù
180 m
Moderno
220 m
Bar degli Archi
250 m
La Paella
480 m
Mostra tutto

Caratteristiche

Rif.:
61194768
Piano:
2 di 9 con ascensore (Piano basso)
Box:
1
Balconi:
2
Camere da letto:
2
Arredamento:
Assente
Mostra tutto
Prezzo Prezzo
€ 199.000
Prezzo box Prezzo box
€ 16.900
Rata mutuo Rata mutuo
€ 941 / mese
Proponi il tuo prezzoProponi il tuo prezzo

Classe Energetica

F
F
F
F
F
F
F
F
F
EP globale non rinnovabile:
189.48 kW h/m² anno
EP globale rinnovabile:
2.00 kW h/m² anno
EP invernale del fabbricato:
EP estiva del fabbricato:
Anno di costruzione:
1970
Riscaldamento:
Centralizzato
Tipo impianto:
A radiatori
Tipo alimentazione:
Metano

Ti interessa visionare l'immobile?

Fissa un appuntamento  Fissa un appuntamento

Richiedi informazioni

Clicca su Leggi per aprire l'informativa
* Questi campi sono obbligatori

Calcola il tuo mutuo

Semplice e senza impegno
Anticipo

( % )
Mutuo

( % )

pochi semplici passi

inserisci i tuoi dati
Questionario completato
Grazie per aver richiesto un appuntamento senza impegno con un nostro Consulente del Credito e Assicurativo.

Hai inserito correttamente tutti i dati necessari e a breve riceverai una e-mail con un link da convalidare per inviare i tuoi dati.
Affiliato
Immobiliare Coppino Sas
Via Coppino, 141/A 10147 Torino (TO)
Via Coppino, 141/A 10147 Torino (TO)
Zona: Borgo Vittoria-Via Cardinal Massaia-Piazza Bonghi
Mostra su mappa
Orari: da Lunedì al Venerdì 9.00-12.30 14.30 - 20.30 Sabato 9.00-12.30 14.30- 19.00 Domenica su appuntamento
Affiliato
Immobiliare Coppino Sas
Via Coppino, 141/A 10147 Torino (TO)

2026 Tecnocasa Franchising S.p.A. - P. IVA 08365160152 - Via Monte Bianco 60/A 20089 Rozzano (MI). Ogni agenzia ha un proprio titolare ed è autonoma. Privacy policy | Policy utilizzo | Cookie policy